- SLIDESHOW
- ON THE BOARDS
- MIXED USE
- MULTI-FAMILY
- RESIDENTIAL
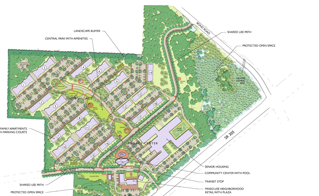
Jackson Village

Village at Pleasant Beach

Habitat Passive House
Silverdale Community Center

Rose Master Plan

Madrone Village

Hildebrand Village

Madison Square
Winslow Building
San Juan Building

Fairbanks Contruction

Hansville Beach House

Eagle Harbor Residence

Parfitt Cottages

Guest House
Pan Adobe Residence
Chico Beach Cottages

Camellia Apartments

Ericksen Cottages

Wood Avenue Townhomes

Janet West Home
